サービス・料金 | 社会福祉法人フェローズ | 横浜市にて高齢者介護サービス事業を運営

サービス・料金

フェローズについて

歌と体操を楽しみながら“家族のような繋がり”を感じられるように
季節折々の懐かしの歌謡曲に耳を傾け、思い出を回想し、あの頃を想いながら皆で歌う―
歌に合わせて身体を動かし、交流を楽しみながら自身の身体を労わる―
そんな、歌や体操などのレクリエーションを通じ、ご利用者様がいきいきと暮らすことのできる環境づくりに尽力しています。
歌や体操を介して生まれる“家族のような繋がり”の中、人との触れ合いを感じながら毎日を過ごしていただくことができます。

グループホーム紹介

9LDKの間取りが特徴的な居住空間で、スタッフや他のご利用者様と家族のような繋がりを感じていただくことができます。

フェローズガーデン獅子ヶ谷

ご利用料金

月 額 ・・・ 123,700円
(家賃53,700円、食費(30日)30,000円、水道光熱費20,000円、管理費20,000円)

敷 金 ・・・ 250,000円

※敷金は退室時に返金致します。
※医療費、薬代、日用品、嗜好品等、個人使用の品は別途費用。

運営規程 ・・・ 詳しくはこちらをクリック
                                    (PDFファイルが開きます)

重要事項 ・・・ 詳しくはこちらをクリック
                                    (PDFファイルが開きます)

 

施設マップ

施設詳細

所在地
神奈川県横浜市鶴見区獅子ヶ谷1-48-26 【アクセス】 バス利用:臨港バスにてJR京浜東北線「鶴見駅」、JR横浜線「横浜駅」、東急東横線「綱島」駅より「北寺尾」徒歩10分
建物
木造2階建 延床面積463.88平米
定員
18名(9名×2ユニット)
設備
全室個室、エアコン・照明器具完備 各フロアーに、浴室(1ヵ所)、浴室床暖房付き・洗面台(3ヵ所)・トイレ(3ヵ所) バリアフリー、エレベーター、スプリンクラー

もっと見る


フェローズガーデン篠原

ご利用料金

月 額 ・・・ 123,700円
(家賃53,700円、食費(30日)30,000円、水道光熱費20,000円、管理費20,000円)

敷 金 ・・・ 250,000円

※敷金は退室時に返金致します。
※医療費、薬代、日用品、嗜好品等、個人使用の品は別途費用。

運営規程 ・・・ 詳しくはこちらをクリック
                                    (PDFファイルが開きます)

重要事項 ・・・ 詳しくはこちらをクリック
                                    (PDFファイルが開きます)

 

施設マップ

施設詳細 

所在地
神奈川県横浜市港北区篠原町2793-2 【アクセス】 電車利用:JR横浜線・市営地下鉄「新横浜駅」徒歩8分
建物
延床面積398.62平米
定員
18名(9名×2ユニット)
設備
全室個室、エアコン・照明器具完備 各フロアーに、浴室(2ヵ所)、浴室床暖房付き・洗面台(6ヵ所)・トイレ(6ヵ所) バリアフリー、エレベーター、スプリンクラー

もっと見る


フェローズガーデン西寺尾

ご利用料金

月 額 ・・・ 110,000円
(家賃40,000円、食費(30日)30,000円、水道光熱費25,000円、管理費15,000円)

敷 金 ・・・ 250,000円

※敷金は退室時に返金致します。
※医療費、薬代、日用品、嗜好品等、個人使用の品は別途費用。

運営規程 ・・・ 詳しくはこちらをクリック
                                       
(PDFファイルが開きます)

重要事項 ・・・ 詳しくはこちらをクリック
                                    (PDFファイルが開きます)

 

施設マップ

施設詳細  

所在地
神奈川県横浜市神奈川区西寺尾2-34-7 【アクセス】 電車利用:JR横浜線「大口駅」徒歩12分 バス利用:市営バス213系統「西寺尾の丘公園」徒歩1分 (乗り場・新子安駅、大口駅東口 等)
建物
木造2階建 延床面積559.26平米
定員
18名(9名×2ユニット)
設備
全室個室、エアコン・照明器具完備 各フロアーに、浴室(1ヵ所)、浴室床暖房付き・洗面台(3ヵ所)・トイレ(3ヵ所) バリアフリー、エレベーター、スプリンクラー

もっと見る

小規模多機能施設紹介

小規模多機能施設では、レクリエーションや行事に対してより一層の力を入れています。

小規模多機能フェローズしのはら

運営規程 ・・・ 詳しくはこちらをクリック
                                    (PDFファイルが開きます)

重要事項 ・・・ 詳しくはこちらをクリック
                                    (PDFファイルが開きます)

 

施設マップ

施設詳細    

所在地
神奈川県横浜市港北区篠原町2793-2 【アクセス】 電車利用:JR横浜線・市営地下鉄線「新横浜駅」徒歩8分
建物
延床面積331.09平米
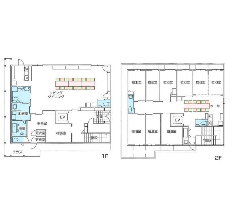
定員
登録29名、通い18名、宿泊9名
設備
個室(9部屋)、洗面台(6ヵ所)、トイレ(4ヵ所)、スプリンクラー

もっと見る


小規模多機能フェローズかたくら

運営規程 ・・・ 詳しくはこちらをクリック
                                     (PDFファイルが開きます)

重要事項 ・・・ 詳しくはこちらをクリック
                                    (PDFファイルが開きます)

 

施設マップ

施設詳細     

所在地
神奈川県横浜市神奈川区片倉5-34-24 【アクセス】 電車利用:市営地下鉄線「片倉町駅」徒歩7分
建物
延床面積309.04平米
定員
登録29名、通い18名、宿泊9名
設備
個室(9部屋)、洗面台(4ヵ所)、トイレ(5ヵ所)、スプリンクラー

もっと見る

ご利用料金

介護保険一部負担額(1ヶ月)

  • 要支援1

    1割負担/3,741円 2割負担/7,481円 3割負担/11,222円

  • 要支援2

    1割負担/7,560円 2割負担/15,119円 3割負担/22,679円

  • 要介護1

    1割負担/11,341円 2割負担/22,681円 3割負担/34,021円

  • 要介護2

    1割負担/16,666円 2割負担/33,332円 3割負担/49,998円

  • 要介護3

    1割負担/24,244円 2割負担/48,488円 3割負担/72,732円

※上記金額に加え、実費負担分として以下の金額がかかります。

・宿泊費1泊  / 3,000円
・各種食事代  / 1,400円(朝食300円、昼食500円、夕食500円、おやつ100円)
・おむつ代   / 実費
・区域外送迎費 / 実費

ご利用の流れ

お問い合わせフォーム、TELにてお気軽にご連絡ください。見学も受け付けております。

利用相談申込書、生活状況表、健康診断書、介護保険被保険者証の写しをご提出ください。

提出書類、ご本人の心身状況をもとに施設での生活に適しているか検討いたします。
※状況によりお断りする場合もございますので、予めご了承ください。

施設の理念等をご理解いただいた上で、契約に関する重要事項の説明・了承・署名をいただき、ご契約となります。